Cordova Flat

COMPLETION
2026

LOCATION
Vancouver, BC

PROJECT TYPE
Renovation

COLLABORATORS
Pablo Munoz

Situated in a quaint area of Vancouver Island, the brief for this cabin was to capture the feeling of coastal living with the use of plywood as the primary material in the space. The space needed to follow the flow of an active lifestyle, while also being conscious of having spaces to relax and unwind. When designing the interior, a large focus was placed on integrating storage where possible, and minimizing the use of complicated hardware for a intuitive space.

Modern plywood living room walls and millwork
Plywood dining room with leather bench and pendant lighting
Plywood living room with window bench seat
Plywood bathroom design with green tile
Plywood office design with open shelving

MAIN FLOOR

01 - Entry
02 - Living Room
03 - Kitchen
04 - Dining Nook
05 - Office
06 - Bedroom
07 - Bathroom

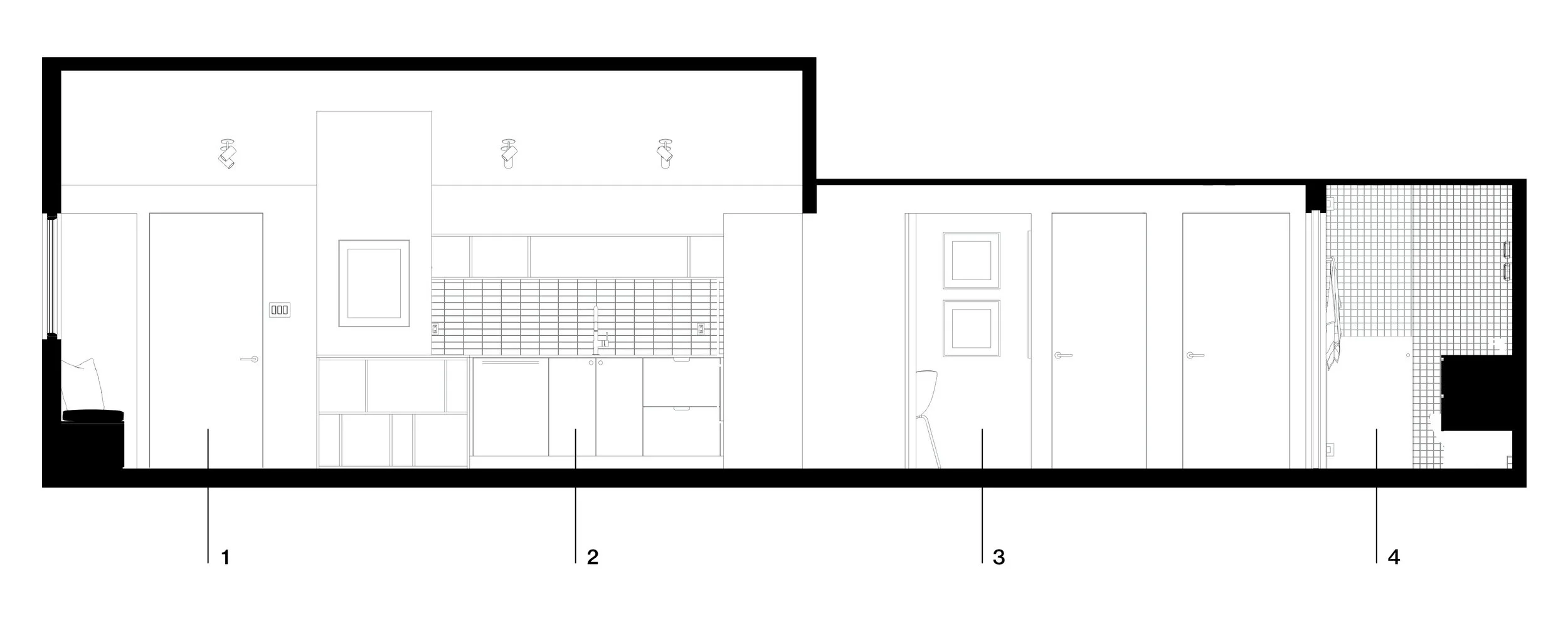
CROSS SECTION - NORTH FACING

01 - Entry
02 - Kitchen
03 - Office
04 - Bathroom